4980 TIMBERSIDE Place
Windermere
Single Family • MLS # 10374185 • $998,000
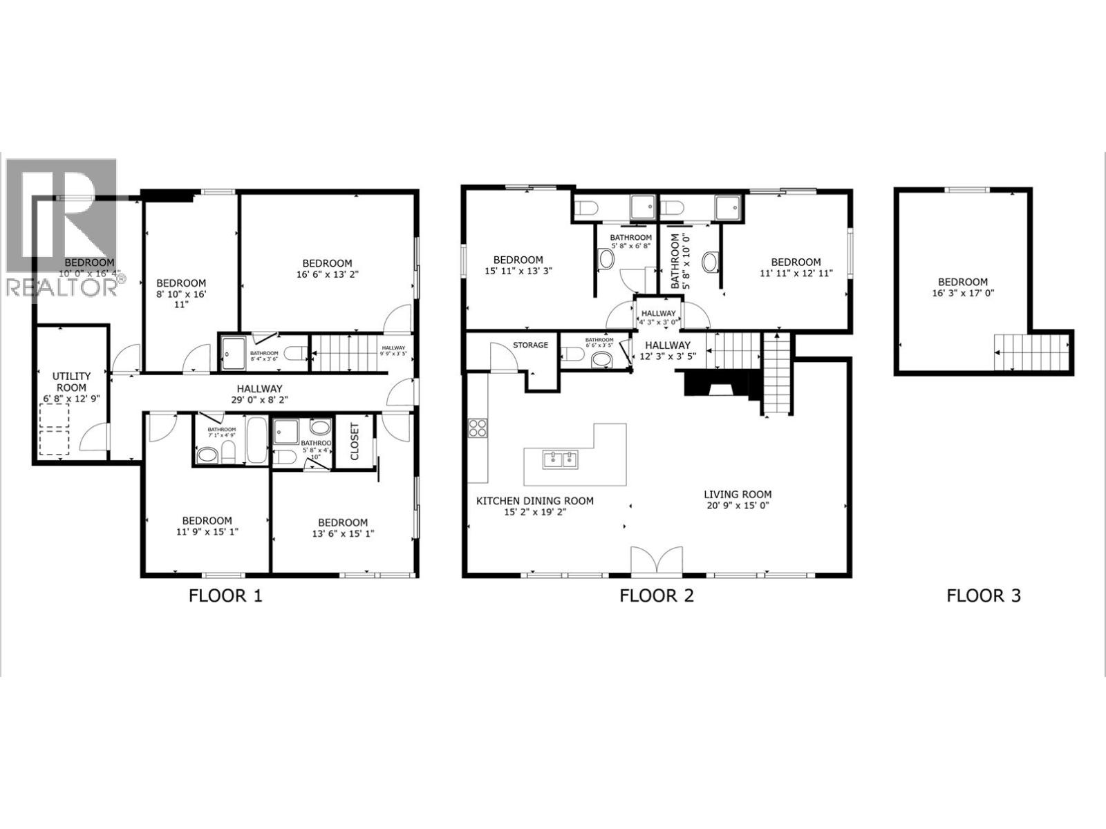
TIMBER RIDGE!!! The lake cabin you have been waiting for!!! Welcome to 4980 Timberside Place in Timber Ridge Phase 3. With stunning mountain views, this 2003 built eight bedroom + loft home is very close to the gated road down to the private and incredible Timber Ridge Beach and marina. Wrap around deck, lots of timeless natural materials with beautiful hardwood floors, open concept living/dinning/kitchen, cozy central wood burning fireplace. Four of the bedrooms have their own private ensuites and patio doors. Massive 0.43 acre treed lot offers lots of parking and outdoor space! An amazing layout and space for bringing the entire family or even several families together for fun and making memories! Being sold furnished and turnkey and priced below tax assessed value, this offers exceptional value and a great entry point into the Timber Ridge community- your head and heart can agree on this one! But don't hesitate... (id:47859)
Overview | |
|---|---|
| MLS # | 10374185 |
| Property Type | Single Family |
| Bedrooms | 8 Bed(s) |
| Bathrooms | 6 Bath(s) |
| Half Bathrooms | 1 Half Bath(s) |
| Stories | 3 Stories |
| Levels | 3 Levels |
| Building Area | 2859 |
| Building Area Units | 0 |
| Address | 4980 TIMBERSIDE Place |
| Community Features | Rentals Allowed |
| Garage | No |
| Heating | Baseboard heaters,,Forced air,See remarks |
| Heating Fuel | ,Electric,, |
| Fireplace Fuel | Wood |
Property Details | |
| Land Area | 0.43 |
| Land Area Units | acres |
| Pool | No |
Construction Information | |
| Year Built | 2003 |
| Flooring | Hardwood |
| Roof | Unknown |
| Sewer | Septic tank |

